MİMARLIK VE YAPILI ÇEVRE PLATFORMU

Electra Elektronik Endüstri Merkezi

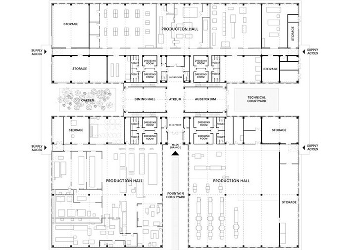
Iaşi’deki Elektronik Endüstri Merkezi, üç endüstriyel salondan oluşan kompakt bir sette 11.000 metrekarelik üretim, ofis, teknik ve temsil alanlarını bir araya getiriyor. Bu işlevler, ortak işlevleri barındıran merkezi bir gövde tarafından birbirine bağlanırlar. Bu çekirdeğin merkezinde bir bağlantı “boşluğu” bulunur. Boşluğu oluşturan atriyum, mekânsal ve insan ilişkilerini ilk sıraya koyan geniş ve aydınlık bir yer sağlar. Üç salonun her biri iki bölümden oluşmaktadır. Her binanın 10 m2’lik iki katlı bölümü, zemin katta teknik ve sosyal alanları, birinci katta ise idari alanları barındırıyor. Üretim alanları sırasıyla 20 ve 40 metrelik bölümlerde yatay ve verimli bir şekilde düzenlenmiştir.

Endüstri Merkezi

Eğimli Çatılar

Dikey olarak, üç cilt şekillerini iç ve dış bağlama uyarlar. Eğimli çatılar hem yapıların işlevsel gereksinimlerine hem de çevre koşullarına hitap etmektedir. Şekilleri, en düşük uygulama ve kullanım maliyetleriyle yağmur suyu yakalamanın teknik sorunlarını çözer ve dolaylı olarak iç hacmi optimize eder. Aynı zamanda bu çatılar üretim ve yönetim arasındaki iletişimin bir ifadesidir.

Endüstri Merkezi Nedir?
Endüstri Merkezi Tasarımı

Bağlantılı Mekânlar

Salonların içinde yönetim, tasarım, üretim ve teslimat birbiriyle bağlantılı süreçler olarak yaşanır. Tüm departmanlar, iş birliğini ve aidiyet fikrini desteklemek için görsel olarak birbirine bağlıdır. Üç avlu, hacimleri ayırarak üç salonun kişiselleştirilmesine yardımcı olur. Çalışma alanlarının çoğu dış mekânlar ile bağlantılıdır. Bunun yanı sıra salonlarda bulunan açıklıklar salonlar arasında görsel bağlantılar sağlar. Böylece grup genelinde etkileşimi kolaylaştıran bir dinamik yaratılır. Tüm detayların düşünülmesi ve uygulanmasında modülerlik ve prefabrikasyon yoğun bir şekilde kullanılmıştır. Bu sayede inşaat hızının artısı ve maliyetlerin düşmesi sağlanmıştır. Gruptaki her şirketin özgünlüğüne özenle uyarlanmış, alanlar arasındaki akışların, kurulumların, oranların ve bağlantıların derinlemesine düşünülmesi, sonunda esnek alanlar üretilmesine yardımcı olmuştur.

Endüstri Merkezi Örnekleri
Fabrika Tasarımı
Fabrika Tasarımı Örnekleri

Sürdürülebilirlik İlkeleri

Proje, iç ortam kalitesini iyileştiren, mekân kullanıcılarının konforunu artıran ve işletme maliyetlerini azaltan sürdürülebilirlik ilkelerini içermektedir: kontrollü doğal havalandırma, tüm çalışma alanlarında doğal ışık, hacimsel optimizasyon, yüksek verimli ısı yalıtımı, entegre yağmur suyu yönetimi. Electra Elektronik Endüstri Merkezi, her şeyden önce sürdürülebilir bir fabrikadır.

Fabrika, üç temel nitelik ile tanımlanabilmektedir:

1. İnsanlık: alanların özenle hazırlanmış ölçeği ve bol görsel iletişim açıklık verir, diyaloğu, güveni ve aidiyet duygusunu geliştirir. 

2. Işık: fabrika bol miktarda doğal ışıktan yararlanır. Bu yalnızca insanların refahı için gerekli olmakla kalmaz, aynı zamanda maliyetleri daha verimli hale getirir.

3. Ritim ve simetri: Neredeyse iyi prova edilmiş bir set tasarımı gibi, bu düzenlilik ve orantılılık, insanların fabrikada nasıl çalıştıklarını, düşündüklerini ve hayal kurduklarını gösterir.

Endüstri Merkezi Plan
Endüstri Merkezi Plan
Endüstri Merkezi Projeleri




CEVAP VER

Lütfen yorumunuzu giriniz!
Lütfen isminizi buraya giriniz

İlginizi Çekebilir