Tomoarchitects Milano’nun kalbinde yer alan avlulu bir yapıya sahip eski bir laboratuvarın restorasyonu ve konut kullanımına dönüştürülmesi için çalışmaya başlıyor. Bu restorasyon projesinde amaç evin orijinal çıplak yapısını hayata döndürmek ve dışarıdan gözlemleyenler için mümkün olduğu kadar görünür tutmaya çalışmaktır. Tüm alan, özellikle duvarlar ve tavan geçtiğimiz yıllarda isimsiz bir beyaz tahta ile kaplanmıştı. Beyaz tahta ile kaplama, zamanla bozulan tuğlaların ve ahşap tavanın restorasyonu için yoğun bir çalışma gerektiriyordu. Kaplamanın yanı sıra, bu restorasyona zemin katta kazı ve sonifikasyon çalışmaları da eklenmiştir.

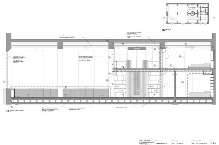
Laboratuvarın restorasyonu çerçevesinde, beton, ahşap, çelik, demir, cam ve deri gibi hem yüksek kaliteli ve çağdaş hem de sürdürülebilir malzemeler kullanıldı. Bu malzemeler, 18. yüzyıldan kalma orijinal yapıya restorasyon süresince eklendi. Proje, zemin katta 200 ve asma katta 100 olmak üzere 300 metrekarelik bir alana yayılıyor. Bu bağlamda, projede yer alan açık ama ayrı alanların stenografik etki ve işlevsellik arasında mükemmel bir denge oluşturduğu görülüyor.


Restorasyon ve Dekorasyon
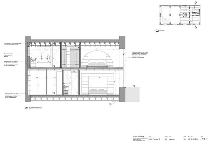
Orijinal tuğla kemerler, gerektiğinde mahremiyeti koruyarak mekân boyunca aynı anda tam görüşe izin veren ve kullanıcıya bir dizi diyagonal görsel perspektif sağlayan bir ortamı ifade eder. Restorasyon projesinde açık plan çizilmiştir. Bunu sebebi ise, mutfak ve stüdyo gibi yoğun kullanım alanları ile gündüz ve gece olmak üzere günün farklı zamanlarında kullanılan alanları ayırmaktır. Bu şekilde gelişen restorasyon projesi, hem herkesin kullandığı ortak bir girişe ama aynı zamanda gerektiğinde mahrem alan oluşturmaya izin verir.



Restorasyon süresince, çatı katı, dairesel beton yapı içinde yer alan paslanmaz çelik ve meşe merdiven ile evin merkezi çekirdeği aracılığıyla doğrudan birbirine bağlanan iki kademede gelişir. Yüksek kaliteli işçilik ve teknoloji, bu restorasyonda çok çekici ve verimli bir alan yaratmak için birleştirilir.




Restorasyonda detaylara, şekillere ve köşe çözümlerine gösterilen titiz bir şekilde dikkat edilir. Bu bağlamda mekândaki tüm hareketlere, dokunuşlara ve göze akıcılık kazandırmak için, dökme beton duvarlardan biri de dahil olmak üzere tüm kenarlar mümkün olduğunca yuvarlak hale getirilmiştir.







